賃貸 一戸建て 小下田一戸建て

間取り・築年数

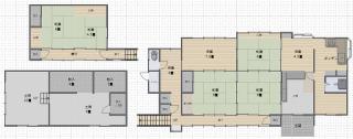
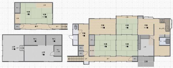
6SLDK

1967年3月

58年11ヶ月

賃料
5.5万円
敷金・礼金

敷金55000円

礼金55000円

初回家賃保証料家賃の50%

家財保険18000円

更新の費用

更新事務手数料1万+税

家財保険18000円

その他諸経費

区費、消防費1,100

引き落とし手数料440円

分割保証料800円

住所・交通・学区

伊豆市小下田2032-1

駐車場

有り


お庭で家庭菜園可能です。海多少見えます。一部リフォーム工事済み。フローリングは決まり次第貼ります。


  • 地目

    宅地

  • 地勢

    高台

  • 手数料

    分かれ

  • 取引態様

    仲介

  • 現況

    空家

  • 用途地域

    無指定

  • 構造材質

    木造

  • 引き渡し

    相談

  • 土地面積

    383.47

  • 建物面積

    181.04